



Cauti o locuinta moderna, spatioasa si eficient compartimentata in Sibiu? Avem oferta ideala pentru tine – direct de la dezvoltator, fara comision!
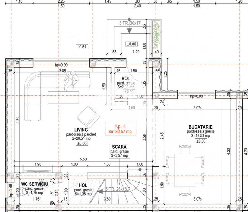
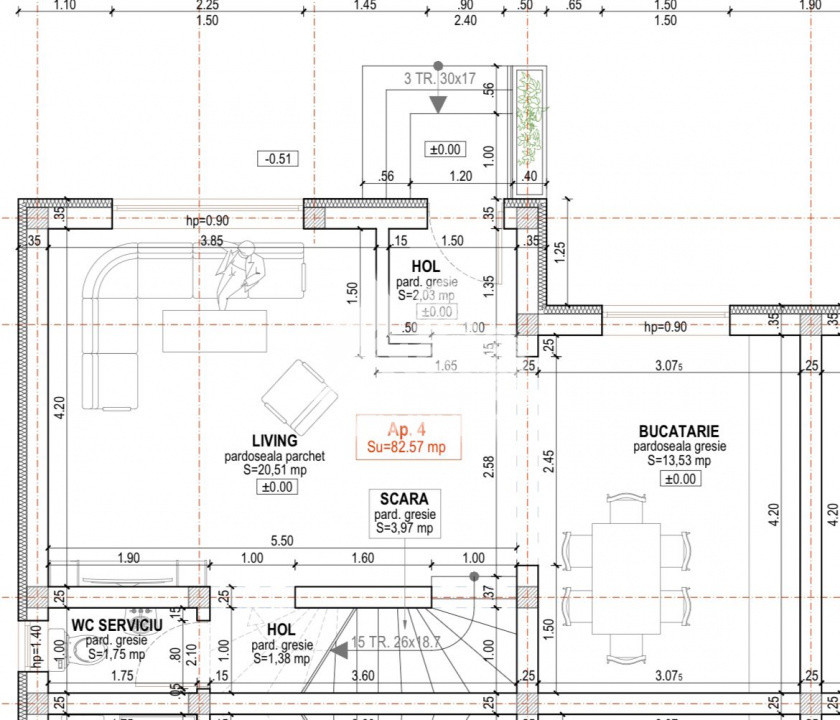
🔵 Agentia MTN Invest iti propune spre vanzare o casa tip qvadruplex P+1, situata in Cartierul Arhitectilor, cu suprafata utila de 82 mp, 3 camere, 2 bai, 1 balcon, curte libera de 170 mp si loc de parcare inclus.
Compartimentare eficienta:
🔸 Parter:
Living generos 20,51 mp
Bucatarie 13,53 mp
Hol + spatiu depozitare
Baie cu geam
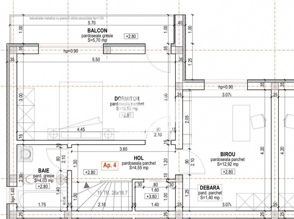
🔸 Etaj:
2 dormitoare
Baie cu geam
1 balcoane
Hol
🟢 Casa se preda la alb interior si la cheie exterior, cu multiple beneficii:
✔ Incalzire in pardoseala (parter si etaj)
✔ Centrala termica in condensatie
✔ Ferestre termopan 3 foi
✔ Usa intrare cu tamplarie PVC si geam termopan
✔ Zona linistita, aproape de magazine, scoli si mijloace de transport
✅ Pret: 172.000 euro
✅ Disponibila si varianta cu 4 camere, 110 mp utili + curte 50 mp la 182.000 euro
🔴Programeaza o vizionare si descopera confortul unei case noi, perfecte pentru familia ta!
📞 Contacteaza-ne acum – 0 % comision la achizitie
ID INTERN- P179553