














O casa nu este doar un spatiu – este locul unde iti construiesti viata.Iar aceasta proprietate individuala din Selimbar are tot ce iti trebuie: spatiu, confort si o compartimentare gandita pentru familia ta.
Situata pe un teren generos de 817 mp, casa beneficiaza de o suprafata utila de 201 mp, la care se adauga terase de 41,3 mp si un garaj de 36,5 mp. Interiorul este bine structurat pe doua niveluri, oferind spatii aerisite si functionale.
📐 Teren total: 817 mp
🌿 Curte libera: 664 mp
🏠 Suprafata utila: 201 mp + terase 41,3 mp + garaj 36,5 mp
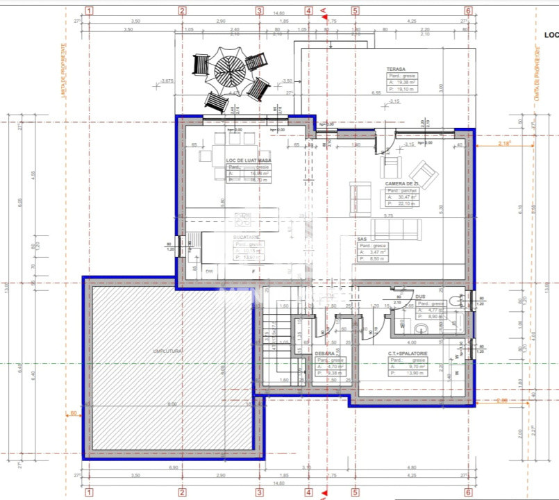
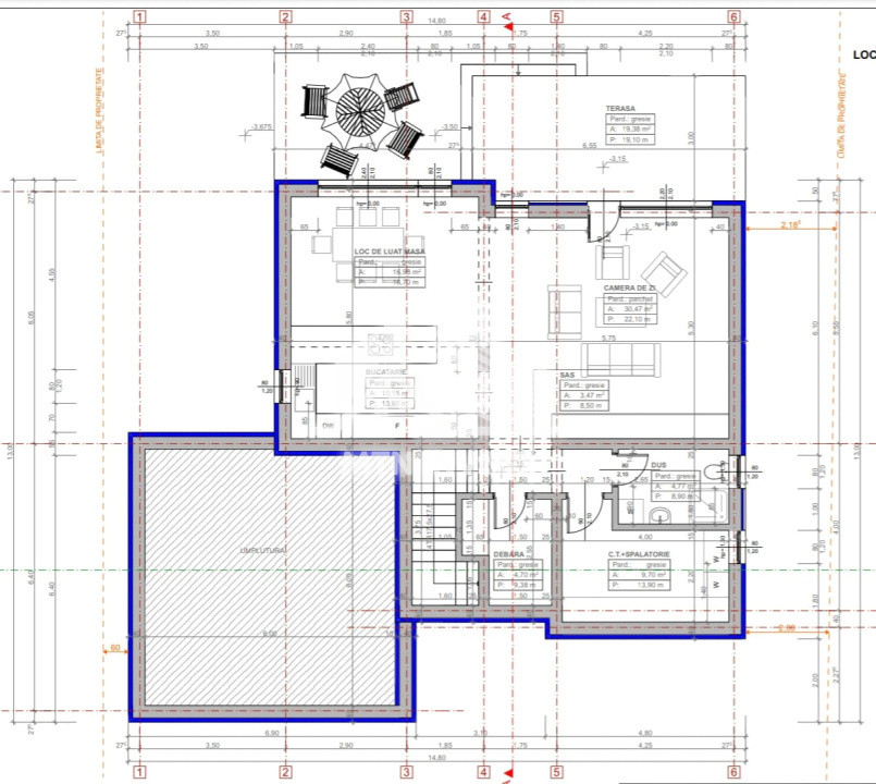
📍 Parter / Demisol:
Living: 30,5 mp
Bucatarie: 27,1 mp
Baie: 4,8 mp
Spatiu Tehnic: 9,7 mp
Hol: 3,5 mp
Debara: 4,7 mp
Garaj: 36,5 mp
Terasa Living: 19,4 mp
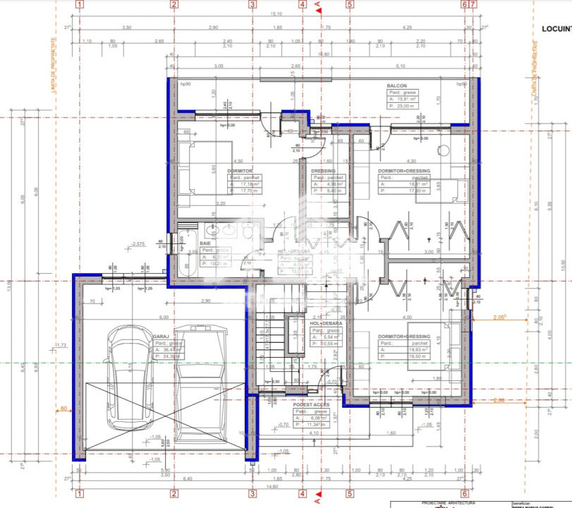
📍 Etaj 1:
Casa scarii: 5,6 mp
Dormitor 1: 18,9 mp
Dormitor 2: 18,8 mp
Dormitor 3: 17,2 mp
Baie principala: 6,2 mp
Baie secundara / Debara: 5,0 mp
Hol intrare: 5,5 mp
Hol dormitoare: 7,0 mp
Terasa acces: 6,0 mp
Balcon dormitoare: 15,9 mp
🏠 Beneficii suplimentare:
✔ Structura solida cu stalpi din beton si zidarie portanta de 30 cm
✔ Placa de beton cu termoizolatie 15 cm peste etaj
✔ Pereti termoizolati cu polistiren de 10 cm + tencuiala decorativa
✔ Incalzire in pardoseala cu pompa de caldura 16kVa
✔ Tamplarie PVC Salamander cu 7 camere si 3 foi de sticla
Profita acum de comision 0%, si beneficiezi de o casa la cheie la pretul de 350.000 euro, TVA inclus.
📲 Contacteaza MTN Invest Sibiu si hai sa iti prezentam locuinta in care te vei simti cu adevarat acasa. Programeaza o vizionare astazi!
ID INTERN/ P175150